Pāriet uz lapas saturu
Ogres novada pašvaldība Ogres novada pašvaldība Ogres novada pašvaldība Ogres novada pašvaldība
Izvēlne
Atpakaļ
  • Pašvaldība
    • Dome
      • Domes priekšsēdētājs
      • Deputāti
      • Domes un komiteju sēdes
        • Ogres novada pašvaldības domes lēmumi
        • Ogres novada pašvaldības komiteju un domes sēdes 2025. gadā
      • Komitejas
      • Komisijas
    • Pašvaldības struktūra
    • Iestādes
      • Ogres novada pašvaldības policija
      • Ogres novada Izglītības pārvalde
      • Ogres novada Sociālais dienests
        • Atbalsta nodaļa ģimenēm ar bērniem
        • HIV profilakses punkts
        • Sociālo pakalpojumu nodaļa
        • Sociālās palīdzības nodaļa
        • Ģimenes atbalsta dienas centrs
        • Dienas centrs "Saime"
      • Ogres novada bāriņtiesa
      • Ogres novada Kultūras un tūrisma pārvalde
      • Ogres novada Kultūras centrs
      • Ogres novada Sporta centrs
      • Ogres Centrālā bibliotēka
      • Ogres Vēstures un mākslas muzejs
      • Ogres teātris
      • Apsaimniekošanas iestādes
        • SIA "Ogres Namsaimnieks"
        • SIA “Lielvārdes Remte”
        • SIA “Ķeguma Stars”
        • SIA „Ikšķiles māja”
        • PA "Ogres komunikācijas"
        • Ogres novada pašvaldības aģentūra "Rosme"
        • Lauberes komununālo pakalpojumu iestāde "Sarma"
        • Madlienas komunālo pakalpojumu iestāde "ABZA"
        • SIA "MS Siltums"
        • Kapu apsaimniekošana Ogrē un Ogresgala pagastā
    • Kapitālsabiedrības
    • Budžets
      • 2025
      • 2024
      • 2023
      • 2022
      • 2020
      • 2021
      • 2019
        • Uzņēmuma līgumi 2019. gadā
      • 2018
        • Uzņēmuma līgumi 2018. gadā
      • 2017
        • Uzņēmuma līgumi 2017. gadā
      • 2016
        • Uzņēmuma līgumi 2016.gadā
      • 2015
      • 2014
        • Amatu saime
      • 2013
      • 2012
      • 2011
      • 2010
      • 2008
      • 2009
      • 2007
    • Normatīvie akti
      • Saistošie noteikumi
        • Pašvaldības nolikums
        • Pašvaldības budžets
        • Izglītība un sports
        • Sociālā palīdzība un atbalsts
        • Vides aizsardzība un sabiedriskā kārtība
        • Nekustamais īpašums
        • Atļaujas un licences
        • Pašvaldības projektu konkursi
        • Maksas pakalpojumu cenrāži
        • Teritorijas plānošana
        • Inženierkomunikāciju un apbūves aizsardzība
        • Pašvaldības iestāžu un aģentūru nolikumi
        • Citi
        • Ielu tirdzniecība
      • Saistošo noteikumu projekti
      • Lēmumi
      • Par ierobežotas informācijas pieejamības nodrošināšanu
      • Deleģēšanas līgumi
      • Saistošie noteikumi, kas zaudējuši spēku
    • Pašvaldības publiskais pārskats
    • Attīstība
      • Attīstības plānošana
      • Publiskās un sabiedriskās apspriešanas
      • Attīstības dokumenti
        • Arhīvs
      • Teritorijas plānojums
      • Lokālplānojumi
      • Detālplānojumi
        • Apstiprinātie detālplānojumi
      • Vēsturisko Ikšķiles, Ķeguma un Lielvārdes novadu Attīstības plānošanas dokumenti
        • Vēsturiskā Ikšķiles novada Attīstības plānošanas dokumenti
        • Vēsturiskā Ķeguma novada Attīstības plānošanas dokumenti
        • Vēsturiskā Lielvārdes novada Attīstības plānošanas dokumenti
    • Projekti
      • Projektu jaunumi
      • Projekti
      • Vēsturiskajos Lielvārdes, Ķeguma un Ikšķiles novados īstenotie projekti
      • Sadraudzības un sadarbības pašvaldības
        • Nozīmīgākie pēdējā laikā īstenotie starptautiskie projekti
    • Būvvalde
      • Noderīgi - par dokumentu iesniegšanu BIS
      • Informācija par iesniegto dokumentāciju un pieņemtajiem lēmumiem
      • Ogres novada teritorijas plānojums
      • Reklāmas, izkārtnes, sludinājumu un citu informatīvo materiālu saskaņošana
    • Iepirkumi
    • Izsoles
      • Aktuālā informācija par pašvaldības izsludinātajām izsolēm
      • Arhīvs
      • Nomas tiesību izsoles
    • Īpašumi
      • Nomas tiesību izsoles
      • Brīvo dzīvojamo telpu saraksts
      • Iznomātie īpašumi
      • Zemesgabalu noma
        • Iznomā zemi Jumpravas pagastā
        • Iznomā zemi Ķeipenes pagastā
        • Iznomā zemi Krapes pagastā
        • Iznomā zemi Lauberes pagastā
        • Iznomā zemi Lielvārdes pilsētā un pagastā
        • Iznomā zemi Madlienas pagastā
        • Iznomā zemi Mazozolu pagastā
        • Iznomā zemi Ogrē un Ogresgala pagastā
        • Iznomā zemi Suntažu pagastā
      • Iesniegumu formas darījumiem ar lauksaimniecības zemi
      • Noma no privātpersonām
      • Dzīvojamām mājām funkcionāli nepieciešamā zemesgabala pārskatīšana
      • Inženierkomunikāciju turētāji augstas detalizācijas topogrāfiskās informācijas saskaņošanai
    • Vakances
    • Trauksmes celšana
    • Korupcijas novēršana
    • Personas datu aizsardzība
  • Novads
    • Par novadu
      • Ogres novada pilsētas un pagasti
        • Ikšķile
        • Ķegums
        • Lielvārde
        • Ogre
        • Birzgales pagasts
        • Jumpravas pagasts
        • Krapes pagasts
        • Ķeipenes pagasts
        • Lauberes pagasts
        • Lēdmanes pagasts
        • Lielvārdes pagasts
        • Madlienas pagasts
        • Mazozolu pagasts
        • Meņģeles pagasts
        • Ogresgala pagasts
        • Rembates pagasts
        • Suntažu pagasts
        • Taurupes pagasts
        • Tīnūžu pagasts
        • Tomes pagasts
      • Simbolika
      • Daba
      • Kartes
      • Ogres novada Goda pilsoņi
      • Gada ogrēnietis
    • Civilā aizsardzība
      • Civilās aizsardzības plāns
      • Vadlīnijas potenciālo patvertņu minimālajām tehniskajām prasībām
      • Apstiprināto patvertņu saraksts
    • Jaunatne
      • Jauniešu telpas
      • Jauniešu dome
      • Jauniešu organizācijas
        • Ogresgala 5.skautu un gaidu vienība
        • Ogres 29. skautu un gaidu vienība
        • Ogres jauniešu iniciatīvas biedrība "Talantu kalve"
        • Biedrība “REload”
        • Biedrība "Dzīvā ideja"
        • Biedrība "MĒS attīstībai"
        • Ogres, Suntažu un Madlienas jaunsargu vienība
        • Biedrība "Nākotnes Tilts"
      • Brīvprātīgais darbs
    • Izglītība
      • Izglītības pārvalde
      • Pirmsskolas izglītība
        • Privātā pirmsskolas izglītība
        • Bērnu uzraudzības pakalpojumu sniedzēji – mājdārziņi
        • Pirmsskolas izglītības iestādes
        • Bērnu reģistrācija PII
        • Pašvaldības lidzfinansējums pirmsskolas izglītības pakalpojuma nodrošināšanai privātā izglītības iestādē
        • Saistošie noteikumi
        • Nodarbības pirmskolas vecuma berniem
      • Pamatizglītība un vispārējā vidējā izglītība
        • Birzgales pamatskola
        • Edgara Kauliņa Lielvārdes vidusskola
        • Ikšķiles vidusskola
        • Jaunogres pamatskola
        • Jumpravas pamatskola
        • Ķeguma vidusskola
        • Ķeipenes pamatskola
        • Lēdmanes pamatskola
        • Lielvārdes pamatskola
        • Madlienas vidusskola
        • Ogres Kalna pamatskola
        • Ogres Centra pamatskola
        • Ogres Valsts ģimnāzija
        • Ogresgala pamatskola
        • Suntažu pamatskola
        • Suntažu pamatskolas Lauberes filiāle
        • Taurupes pamatskola
        • Taurupes pamatskolas Mazozolu filiale
        • Taurupes pamatskolas Menģeles filiale
        • Tīnūžu sākumskola
        • Valdemāra pamatskola
        • Informācija par rindu uz 1.klasi Ogres pilsētas izglītības iestādēs
        • Piešķirtās vietas uz 1. klasi Ogres vispārējās izglītības iestādēs
        • Elektroniskais reģistrs uzņemšanai 1. klasē vispārējās izglītības iestādēs Ogrē
        • Izglītības programmas Ogres novada izglītības iestādēs
      • Profesionālas ievirzes un interešu izglītība
        • Basketbola skola
        • Interešu izglītības iestāde
        • Birzgales Mūzikas skola
        • Ikšķiles Mūzikas un mākslas skola
        • K.Kažociņa Madlienas mūzikas un makslas skola
        • Lielvārdes Mūzikas un mākslas skola
        • Lielvārdes Sporta centrs
        • Ogres Mūzikas un mākslas skola ( Mākslas nodaļa)
        • Ogres Mūzikas un mākslas skola ( Mūzikas nodaļa)
        • Ogres novada sporta centrs
      • Pasākumi
      • Statistika
      • Interešu izglītības un pieaugušo neformālās izglītības programmu licencēšanas kārtība
      • Pedagoģiski medicīniskā komisija
      • Pedagogu profesionālās kvalifikācijas pilnveide
      • Projekti
    • Kultūra
      • Notikumu kalendārs
      • Kultūras un tautas nami Ogres novadā
        • Ogres novada Kultūras centrs
        • Birzgales Tautas nams
        • Ciemupes Tautas nams
        • Ikšķiles Tautas nams
        • Jumpravas kultūras nams
        • Krapes pagasta Tautas nams
        • Ķeguma Tautas nams
        • Ķeipenes pagasta Tautas nams
        • Lauberes pagasta Kultūras nams
        • Lēdmanes Tautas nams
        • Lielvārdes Kultūras nams
        • Madlienas pagasta Kultūras nams
        • Mazozolu pagasta Kultūras nams
        • Meņģeles pagasta Tautas nams
        • Ogresgala Tautas nams
        • Rembates Tautas nams
        • Suntažu pagasta Kultūras nams
        • Taurupes pagasta Tautas nams
        • Tīnūžu Tautas nams
        • Tomes Tautas nams
      • Bibliotēkas
        • Birzgales pagasta bibliotēka
        • Ciemupes bibliotēka
        • Ikšķiles pilsētas bibliotēka
        • Jumpravas pagasta bibliotēka
        • Jumpravas pagasta bibliotēka
        • Krapes pagasta bibliotēka
        • Ķeguma pilsētas bibliotēka
        • Ķeipenes pagasta bibliotēka
        • Lauberes pagasta bibliotēka
        • Lāčplēša bibliotēka (Lielvārdes pilsētas bibliotēkas filiāle)
        • Lēdmanes pagasta bibliotēka
        • Lielvārdes pilsētas bibliotēka
        • Madlienas pagasta bibliotēka
        • Mazozolu pagasta bibliotēka
        • Meņģeles pagasta bibliotēka
        • Ogres Centrālā bibliotēka
        • Ogres Centrālās bibliotēkas Bērnu literatūras nodaļa
        • Ogresgala bibliotēka
        • Rembates pagasta bibliotēka
        • Suntažu pagasta bibliotēka
        • Taurupes pagasta bibliotēka
        • Tīnūžu pagasta bibliotēka
        • Tomes pagasta bibliotēka
      • Muzeji
        • Andreja Pumpura Lielvārdes muzejs
        • Birzgales muzejs "Rūķi"
        • Ikšķiles vidusskolas muzejs
        • Kinostacija Ķeipenē
        • Kultūras mantojumu centrs "Tīnūžu muiža"
        • Latvenergo koncerna Enerģētikas muzejs
        • Ķeguma pilsētas muzejs
        • Madlienas novadpētniecības muzejs "Bet tā bija!"
        • Muzejs ''Tehnika no pagātnes''
        • Ogres Vēstures un mākslas muzejs
        • Publiskā observatorija Suntažos
        • Senlietu istaba - Jumpravas pagasta vēstures ekspozīcija
        • Sudrabu Edžus dzimtās mājas
        • Suntažu muižas pils un muzejs
        • Taurupes muiža un novadpētniecības muzejs
      • Ogres teātris
    • Sabiedriskās organizācijas
      • Nevalstiskās organizācijas
        • Biedrība "Aktīvās atpūtas centrs jauniešiem"
        • Biedrība "Dzelmju attīstībai"
        • Biedrība "Dzīvais māls"
        • Biedrība "Ģimenes darbnīca"
        • Biedrība "Ikšķiles Senioru skola"
        • Biedrība "Izaugsmei un Attīstībai"
        • Biedrība "Jumpravas māmiņu klubs"
        • Biedrība “Ogres novada attīstībai”
        • Biedrība "Ogres novada Tūrisma uzņēmēju biedrība"
        • Biedrība „Otrās mājas”
        • Biedrība "Plaužezeram"
        • Biedrība "Semper Novus"
        • Biedrība „Sieviešu klubs Ķeguma saulespuķes”
        • Biedrība TEPAT un KOPĀ
        • Biedrība "Vecāki kopā"
        • Biedrība "Visa Veida Kustība"
        • Biedrība "1991.gada barikāžu dalībnieki Ogres novadā"
        • Birzgales pensionāru biedrība "VIRŠU LAIKS"
        • Fonds Zilais Krusts
        • Foto klubs "Ogre"
        • Ikšķiles pensionāru biedrība "Saulgrieži"
        • Ķeguma pensionāru biedrība
        • Ķeipenes pensionāru biedrība „Avotkreses”
        • Latvijas izglītības darbinieku arodbiedrības Ogres starpnovadu arodorganizācija
        • Latvijas neredzīgo biedrības Ogres teritoriālā nodaļa
        • Latvijas Sarkanais krusts, Ogres komiteja
        • Lazdukalni 2000
        • Lielvārdes Attīstības fonds
        • Lielvārdes invalīdu biedrība
        • Lielvārdes Latviešu biedrība
        • Lielvārdes Pensionāru biedrība
        • Lielvārdes sieviešu biedrība "Iespēja"
        • Lielvārdes uzņēmēju biedrība
        • Madlienas pensionāru biedrība "Sisegale"
        • Ogres invalīdu biedrība
        • Ogres jauniešu klubs, Projektu darbnīca
        • Ogres patērētāju tiesību aizsardzības organizācija
        • Ogres pensionāru biedrība
        • Ogres politiski represēto klubs
        • Ogres uzņēmēju biedrība
        • Publisko un privāto partnerattiecību biedrība "Zied Zeme"
        • Rotari klubs
        • Sieviešu biedrība "JADARA"
        • Starptautiskais soroptimistu klubs "OGRE-ĶEGUMS"
        • Tomes sieviešu klubs “Ābele”"
      • Reliģiskās organizācijas
        • Aderkašu Svētās Marijas-Magdalēnas pareizticīgo draudze
        • Baskāju Karmela māsu ordeņa klosteris
        • Ikšķiles evaņģēliski luteriskā draudze
        • Ikšķiles Sv. Gara pareizticīgo baznīcas draudze
        • Ikšķiles Sv.Meinarda Romas katoļu draudze
        • Jumpravas evanģēliski luteriskās baznīcas draudze
        • Jumpravas katoļu baznīcas draudze
        • Krapes evaņģēliski luteriskā draudze
        • Krapes Sv. Arsēnija pareizticīgo baznīca
        • Ķeguma evaņģēliski luteriskās draudze
        • Lēdmanes Svēto apustuļu Pētera un Pāvila katoļu baznīcas draudze
        • Lielvārdes evanģēliski luteriskā draudze
        • Lielvārdes evanģēliskas ticības draudze "Gars un Patiesība"
        • Lielvārdes Romas katoļu draudze
        • Lielvārdes Sv. Nikolaja pareizticīgo baznīcas draudze
        • Madlienas evaņģēliski luteriskā draudze
        • Meņģeles evaņģēliski luteriskā draudze
        • Ogres evanģēliski luteriskā baznīca
        • Ogres Septītās dienas Adventistu draudze
        • Ogres Sv. Meinarda Romas katoļu baznīca
        • Ogres Sv. Nikolaja pareizticīgo draudze
        • Ogres Trīsvienības baptistu draudze
        • Suntažu evaņģēliski luteriskā draudze
        • Suntažu Vissvētās Trīsvienības Romas katoļu draudze
        • Tomes evaņģēliski luteriskā draudze
    • Sabiedriskais transports
    • Sociālā joma
      • Socialā palīdzība
      • Ogres novada socialais dienests
        • Kontakti
        • Ogres novada Sociālā dienesta vēsture
        • Normatīvie akti
        • Atbalsts daudzbērnu ģimenēm
        • Veidlapas
        • Atskaites
    • Sports
      • Sporta skolas un centri
      • Sporta nodarbības
        • Peldēšana
        • Basketbols
        • Vieglatlētika
        • Svarcelšana
        • Mākslas vingrošana
        • Futbols
        • Karatē
        • Daiļslidošana
        • Orientēšanās sports
        • Frisbijs
        • Florbols
        • Handbols
        • Handbols
        • Hokejs
      • Baseins
    • Tūrisms
      • Tūrisma informācijas centrs
    • Uzņēmējdarbība
      • Ogres novada uzņēmēju biedrība
      • Uzņēmējdarbības statistika
      • LIAA pārstāvniecība Ogrē
    • Veselība
      • Poliklīnikas, slimnīcas
        • Ogres rajona slimnīcas ambulatorā nodaļa
        • Ogres veselības centrs
        • Ģimenes ārstu prakses Ogres novadā
        • Ogres rajona slimnīca
      • Oveselība
    • Vide
      • Atkritumu apsaimniekošana
      • Ceļu uzturēšana
      • Latvāņu ierobežošanas pasākumu plāns
      • Mežu apsaimniekošana
      • Reģistrētie asenizatori Ogres novadā
      • Zemes dzīļu izmantošana novadā
      • Ielu un ceļu uzturēšanas klases
      • Ielu apgaismojums
      • HES kamera
  • Pakalpojumi
    • Pakalpojumu saraksts
    • Tiešsaistes pieraksts
    • Ogres novadnieka karte
      • Norēķini ar Mobilly
      • Uzņēmēju piedāvājumi
        • 10% atlaide iepriekš veiktiem pasūtījumiem “M.Pūres beķerejā”
        • 10% atlaide konsultācijai Ātrās pieejamības medicīnas klīnikā 1 Min. Klīnika Ogrē
        • 10% atlaide saulesbrillēm, briļļu ietvariem un 10% atlaide kontaktlēcām iegādei optikas salonā Metropole
        • 10% atlaide šķēršļu parka “Milžu taka” apmeklējumam
        • 5% atlaide SIA "Kreispuses" bērnu un zīdaiņu apğērbiem, apaviem
        • 5% atlaide precēm veikalos “Latvijas Pērles - Ogre”, “Rabarbers” un “Latvijas Pērle” birojā
        • Atlaides Ogres novada kultūras pasākumiem
        • Atlaides individuālam apmeklējumam un abonementam klinšu kāpšanas tornī Ogre
        • Ogres Vēstures un mākslas muzejā - ieeja bez maksas
        • 10% atlaide ekskursijām Vecrīgā gida pavadībā
        • 10% atlaide “Manas Garšas” pirkumiem un pasākumiem
        • 10% atlaide precēm dāvanu veikalā “ALshop”
        • 10% atlaide telpu īrei svinību un atpūtas vietā “Oranžērija Bekuciems”
        • 10% atlaide izklaides parkā “Avārijas brigāde” sezonas abonementa iegādei
        • 10% atlaide veikalā “Zoocentrs”
        • 10% atlaide visām auto precēm veikalā “Ella auto”
        • 10% atlaide ziemas virsdrēbju šūšanai salonā “Valērija”
        • 10% atlaide “Dzīvības poga” abonēšanas maksai pirmajiem trīs mēnešiem
        • 10% atlaidi gatavajiem izstrādājumiem SIA “Volantes” aizkaru veikalā-darbnīcā
        • 10% atlaidi pirkumiem kafejnīcā "Ogres Ezītis miglā"
        • 15% atlaide, iegādājoties biļetes uz Ogres teātra izrādēm
        • Atlaides “Štoka picā” Ogrē
        • Bezmaksas ekskursija pa “IndieJānis” alus darītavu
        • Peldbaseina “Neptūns” piedāvājumi
        • Ķeipenes piparkūku studija piedāvā 10% atlaidi no ekskursijas cenas
    • E-iesniegums
  • Aktualitātes
    • Notikumu kalendārs
    • Jaunumi
    • Foto un video
    • Informatīvie izdevumi
      • Informatīvais izdevums "Ikšķiles Vēstis"
      • Informatīvais izdevums "Lielvārdes Novada Ziņas"
      • Informatīvais izdevums "Ķeguma Novada Ziņas"
      • Ogres novada pašvaldības informatīvais izdevums "Savietis"
      • Informatīvais izdevums "Ogrēnietis"
    • Sabiedrības līdzdalība
      • Informācija par kolektīvo iesniegumu virzību
      • Publiskās un sabiedriskās apspriešanas
      • Saistošo noteikumu projekti
      • Trauksmes celšana 
    • Iedzīvotāju padomes
  • Kontakti
    • Pašvaldības kontakti un rekvizīti
    • Pašvaldības administrācija
      • Dzimtsarakstu nodaļa
      • Stratēģiskās plānošanas nodaļa
      • Komunikācijas nodaļa
      • Budžeta nodaļa
      • Finanšu nodaļa
      • Ogres novada būvvalde
      • Ielu un ceļu uzturēšanas nodaļa
      • Infrastruktūras veicināšanas nodaļa
      • Nekustamo īpašumu pārvaldes nodaļa
      • Kanceleja
      • Personālvadības nodaļa
      • Juridiskā nodaļa
      • Informācijas sistēmu un tehnoloģiju nodaļa
      • Materiāltehniskā nodrošinājuma nodaļa
      • Tūrisma informācijas centrs
    • Iestādes un aģentūras
      • Iestādes, aģentūras
    • Darbinieki
    • Pilsētu un pagastu pārvaldes un to padotībā esošas iestādes
    • VPVKAC kontakti
  • Pašvaldība
    • Dome Pašvaldības struktūra un kontakti, publiskie pārskati un normatīvie akti, kas regulē pašvaldības darbību.
      • Domes priekšsēdētājs Pašvaldības domes priekšsēdētāja fotogrāfija, dzīves gājuma apraksts (CV) un kontaktinformācija.
      • Deputāti Informācija par pašvaldības domes deputātiem un viņu atbildības jomām, kā arī viņu kontaktinformācija un fotogrāfijas.
      • Domes un komiteju sēdes Domes sēžu darba kārtība, sēžu ieraksti un protokoli.
        • Ogres novada pašvaldības domes lēmumi
        • Ogres novada pašvaldības komiteju un domes sēdes 2025. gadā
      • Komitejas Pašvaldības komitejas un to sastāvs.
      • Komisijas Pašvaldības komisijas un to sastāvs.
    • Pašvaldības struktūra Pašvaldības struktūra, administrācija un tās pakļautībā esošās struktūrvienības.
    • Iestādes Dažādi saistītie juridiskie atzari pašvaldībā.
      • Ogres novada pašvaldības policija
      • Ogres novada Izglītības pārvalde
      • Ogres novada Sociālais dienests
        • Atbalsta nodaļa ģimenēm ar bērniem
        • HIV profilakses punkts
        • Sociālo pakalpojumu nodaļa
        • Sociālās palīdzības nodaļa
        • Ģimenes atbalsta dienas centrs
        • Dienas centrs "Saime"
      • Ogres novada bāriņtiesa
      • Ogres novada Kultūras un tūrisma pārvalde
      • Ogres novada Kultūras centrs
      • Ogres novada Sporta centrs
      • Ogres Centrālā bibliotēka
      • Ogres Vēstures un mākslas muzejs
      • Ogres teātris
      • Apsaimniekošanas iestādes
        • SIA "Ogres Namsaimnieks"
        • SIA “Lielvārdes Remte”
        • SIA “Ķeguma Stars”
        • SIA „Ikšķiles māja”
        • PA "Ogres komunikācijas"
        • Ogres novada pašvaldības aģentūra "Rosme"
        • Lauberes komununālo pakalpojumu iestāde "Sarma"
        • Madlienas komunālo pakalpojumu iestāde "ABZA"
        • SIA "MS Siltums"
        • Kapu apsaimniekošana Ogrē un Ogresgala pagastā
    • Kapitālsabiedrības
    • Budžets Informācija par budžeta ienākumiem, plānotajiem izdevumiem un darba samaksas sadalījumu atbilstoši amatu grupām.
      • 2025
      • 2024
      • 2023
      • 2022
      • 2020
      • 2021
      • 2019
        • Uzņēmuma līgumi 2019. gadā
      • 2018
        • Uzņēmuma līgumi 2018. gadā
      • 2017
        • Uzņēmuma līgumi 2017. gadā
      • 2016
        • Uzņēmuma līgumi 2016.gadā
      • 2015
      • 2014
        • Amatu saime
      • 2013
      • 2012
      • 2011
      • 2010
      • 2008
      • 2009
      • 2007
    • Normatīvie akti Iestādes darbību regulējošie tiesību akti.
      • Saistošie noteikumi Informācija tiek precizēta. Aktuālie saistošie noteikumi ir tie, kuriem pieejama saite. Visas aktuālās saistošo noteikumu redakcijas pieejamas www.likumi.lv
        • Pašvaldības nolikums
        • Pašvaldības budžets
        • Izglītība un sports Formālās, neformālās un interešu izglītības iespējas novadā.
        • Sociālā palīdzība un atbalsts
        • Vides aizsardzība un sabiedriskā kārtība
        • Nekustamais īpašums
        • Atļaujas un licences
        • Pašvaldības projektu konkursi
        • Maksas pakalpojumu cenrāži
        • Teritorijas plānošana
        • Inženierkomunikāciju un apbūves aizsardzība
        • Pašvaldības iestāžu un aģentūru nolikumi
        • Citi
        • Ielu tirdzniecība
      • Saistošo noteikumu projekti
      • Lēmumi
      • Par ierobežotas informācijas pieejamības nodrošināšanu
      • Deleģēšanas līgumi
      • Saistošie noteikumi, kas zaudējuši spēku
    • Pašvaldības publiskais pārskats Informatīvs dokuments ar mērķi sniegt vispusīgu informāciju par pašvaldības paveikto pilsētas ekonomiskās un sociālās attīstības nodrošināšanā.
    • Attīstība Investīciju iespējas pašvaldībā, aktuālie un plānotie remontdarbi, kā arī noderīgi dokumenti.
      • Attīstības plānošana
      • Publiskās un sabiedriskās apspriešanas
      • Attīstības dokumenti
        • Arhīvs
      • Teritorijas plānojums
      • Lokālplānojumi
      • Detālplānojumi
        • Apstiprinātie detālplānojumi
      • Vēsturisko Ikšķiles, Ķeguma un Lielvārdes novadu Attīstības plānošanas dokumenti
        • Vēsturiskā Ikšķiles novada Attīstības plānošanas dokumenti
        • Vēsturiskā Ķeguma novada Attīstības plānošanas dokumenti
        • Vēsturiskā Lielvārdes novada Attīstības plānošanas dokumenti
    • Projekti Aktuālie un jau pabeigtie projekti.
      • Projektu jaunumi
      • Projekti
      • Vēsturiskajos Lielvārdes, Ķeguma un Ikšķiles novados īstenotie projekti
      • Sadraudzības un sadarbības pašvaldības
        • Nozīmīgākie pēdējā laikā īstenotie starptautiskie projekti
    • Būvvalde Informācija par būvvaldi, plānoto būvniecību pašvaldībā un būvniecību saistošā dokumentācija.
      • Noderīgi - par dokumentu iesniegšanu BIS
      • Informācija par iesniegto dokumentāciju un pieņemtajiem lēmumiem
      • Ogres novada teritorijas plānojums
      • Reklāmas, izkārtnes, sludinājumu un citu informatīvo materiālu saskaņošana
    • Iepirkumi Informācija par plānotajiem, aktuālajiem un noslēgtajiem iepirkumiem, to dokumentācija, kā arī iepirkumu līgumi.
    • Izsoles Informācija par pašvaldības izsludinātajām izsolēm.
      • Aktuālā informācija par pašvaldības izsludinātajām izsolēm
      • Arhīvs
      • Nomas tiesību izsoles
    • Īpašumi Informācija par nekustamajiem īpašumiem, to apsaimniekošanu un nekustamā īpašuma aktualitātes.
      • Nomas tiesību izsoles
      • Brīvo dzīvojamo telpu saraksts
      • Iznomātie īpašumi
      • Zemesgabalu noma
        • Iznomā zemi Jumpravas pagastā
        • Iznomā zemi Ķeipenes pagastā
        • Iznomā zemi Krapes pagastā
        • Iznomā zemi Lauberes pagastā
        • Iznomā zemi Lielvārdes pilsētā un pagastā
        • Iznomā zemi Madlienas pagastā
        • Iznomā zemi Mazozolu pagastā
        • Iznomā zemi Ogrē un Ogresgala pagastā
        • Iznomā zemi Suntažu pagastā
      • Iesniegumu formas darījumiem ar lauksaimniecības zemi
      • Noma no privātpersonām
      • Dzīvojamām mājām funkcionāli nepieciešamā zemesgabala pārskatīšana
      • Inženierkomunikāciju turētāji augstas detalizācijas topogrāfiskās informācijas saskaņošanai
    • Vakances Informācija par aktuālajām vakancēm un amatu konkursiem iestādē.
    • Trauksmes celšana Saskaņā ar Trauksmes celšanas likumu ikvienam ir tiesības celt trauksmi publiskajā un privātajā sektorā par darba vidē novērotu sabiedrības interešu apdraudējumu.
    • Korupcijas novēršana Informācija par to, kā pašvaldībā tiek nodrošināti korupcijas novēršanas pasākumi.
    • Personas datu aizsardzība Pašvaldības Personas datu aizsardzības politika un portāla privātuma politika.
  • Novads
    • Par novadu Vispārīga informācija par novadu/pilsētu.
      • Ogres novada pilsētas un pagasti
        • Ikšķile
        • Ķegums
        • Lielvārde
        • Ogre
        • Birzgales pagasts
        • Jumpravas pagasts
        • Krapes pagasts
        • Ķeipenes pagasts
        • Lauberes pagasts
        • Lēdmanes pagasts
        • Lielvārdes pagasts
        • Madlienas pagasts
        • Mazozolu pagasts
        • Meņģeles pagasts
        • Ogresgala pagasts
        • Rembates pagasts
        • Suntažu pagasts
        • Taurupes pagasts
        • Tīnūžu pagasts
        • Tomes pagasts
      • Simbolika Ģerboņa vēsturiskā attīstība un lietošanas iespējas.
      • Daba
      • Kartes
      • Ogres novada Goda pilsoņi
      • Gada ogrēnietis
    • Civilā aizsardzība Civilā aizsardzība ir pasākumu kopums, kurus īsteno valsts un pašvaldību institūcijas un sabiedrība, lai nodrošinātu cilvēku, vides un īpašuma drošību, kā arī īstenotu atbilstošu rīcību katastrofas un katastrofas draudu gadījumā.
      • Civilās aizsardzības plāns
      • Vadlīnijas potenciālo patvertņu minimālajām tehniskajām prasībām
      • Apstiprināto patvertņu saraksts
    • Jaunatne Projekti, aktīvās atpūtas un citas iespējas jauniešiem.
      • Jauniešu telpas
      • Jauniešu dome
      • Jauniešu organizācijas
        • Ogresgala 5.skautu un gaidu vienība
        • Ogres 29. skautu un gaidu vienība
        • Ogres jauniešu iniciatīvas biedrība "Talantu kalve"
        • Biedrība “REload”
        • Biedrība "Dzīvā ideja"
        • Biedrība "MĒS attīstībai"
        • Ogres, Suntažu un Madlienas jaunsargu vienība
        • Biedrība "Nākotnes Tilts"
      • Brīvprātīgais darbs
    • Izglītība Formālās, neformālās un interešu izglītības iespējas novadā.
      • Izglītības pārvalde
      • Pirmsskolas izglītība
        • Privātā pirmsskolas izglītība
        • Bērnu uzraudzības pakalpojumu sniedzēji – mājdārziņi
        • Pirmsskolas izglītības iestādes
        • Bērnu reģistrācija PII
        • Pašvaldības lidzfinansējums pirmsskolas izglītības pakalpojuma nodrošināšanai privātā izglītības iestādē
        • Saistošie noteikumi
        • Nodarbības pirmskolas vecuma berniem
      • Pamatizglītība un vispārējā vidējā izglītība
        • Birzgales pamatskola
        • Edgara Kauliņa Lielvārdes vidusskola
        • Ikšķiles vidusskola
        • Jaunogres pamatskola
        • Jumpravas pamatskola
        • Ķeguma vidusskola
        • Ķeipenes pamatskola
        • Lēdmanes pamatskola
        • Lielvārdes pamatskola
        • Madlienas vidusskola
        • Ogres Kalna pamatskola
        • Ogres Centra pamatskola
        • Ogres Valsts ģimnāzija
        • Ogresgala pamatskola
        • Suntažu pamatskola
        • Suntažu pamatskolas Lauberes filiāle
        • Taurupes pamatskola
        • Taurupes pamatskolas Mazozolu filiale
        • Taurupes pamatskolas Menģeles filiale
        • Tīnūžu sākumskola
        • Valdemāra pamatskola
        • Informācija par rindu uz 1.klasi Ogres pilsētas izglītības iestādēs
        • Piešķirtās vietas uz 1. klasi Ogres vispārējās izglītības iestādēs
        • Elektroniskais reģistrs uzņemšanai 1. klasē vispārējās izglītības iestādēs Ogrē
        • Izglītības programmas Ogres novada izglītības iestādēs
      • Profesionālas ievirzes un interešu izglītība
        • Basketbola skola
        • Interešu izglītības iestāde
        • Birzgales Mūzikas skola
        • Ikšķiles Mūzikas un mākslas skola
        • K.Kažociņa Madlienas mūzikas un makslas skola
        • Lielvārdes Mūzikas un mākslas skola
        • Lielvārdes Sporta centrs
        • Ogres Mūzikas un mākslas skola ( Mākslas nodaļa)
        • Ogres Mūzikas un mākslas skola ( Mūzikas nodaļa)
        • Ogres novada sporta centrs
      • Pasākumi
      • Statistika
      • Interešu izglītības un pieaugušo neformālās izglītības programmu licencēšanas kārtība
      • Pedagoģiski medicīniskā komisija
      • Pedagogu profesionālās kvalifikācijas pilnveide
      • Projekti
    • Kultūra Notikumi, pasākumi un iespējas iesaistīties kultūras norisēs.
      • Notikumu kalendārs
      • Kultūras un tautas nami Ogres novadā
        • Ogres novada Kultūras centrs
        • Birzgales Tautas nams
        • Ciemupes Tautas nams
        • Ikšķiles Tautas nams
        • Jumpravas kultūras nams
        • Krapes pagasta Tautas nams
        • Ķeguma Tautas nams
        • Ķeipenes pagasta Tautas nams
        • Lauberes pagasta Kultūras nams
        • Lēdmanes Tautas nams
        • Lielvārdes Kultūras nams
        • Madlienas pagasta Kultūras nams
        • Mazozolu pagasta Kultūras nams
        • Meņģeles pagasta Tautas nams
        • Ogresgala Tautas nams
        • Rembates Tautas nams
        • Suntažu pagasta Kultūras nams
        • Taurupes pagasta Tautas nams
        • Tīnūžu Tautas nams
        • Tomes Tautas nams
      • Bibliotēkas
        • Birzgales pagasta bibliotēka
        • Ciemupes bibliotēka
        • Ikšķiles pilsētas bibliotēka
        • Jumpravas pagasta bibliotēka
        • Jumpravas pagasta bibliotēka
        • Krapes pagasta bibliotēka
        • Ķeguma pilsētas bibliotēka
        • Ķeipenes pagasta bibliotēka
        • Lauberes pagasta bibliotēka
        • Lāčplēša bibliotēka (Lielvārdes pilsētas bibliotēkas filiāle)
        • Lēdmanes pagasta bibliotēka
        • Lielvārdes pilsētas bibliotēka
        • Madlienas pagasta bibliotēka
        • Mazozolu pagasta bibliotēka
        • Meņģeles pagasta bibliotēka
        • Ogres Centrālā bibliotēka
        • Ogres Centrālās bibliotēkas Bērnu literatūras nodaļa
        • Ogresgala bibliotēka
        • Rembates pagasta bibliotēka
        • Suntažu pagasta bibliotēka
        • Taurupes pagasta bibliotēka
        • Tīnūžu pagasta bibliotēka
        • Tomes pagasta bibliotēka
      • Muzeji
        • Andreja Pumpura Lielvārdes muzejs
        • Birzgales muzejs "Rūķi"
        • Ikšķiles vidusskolas muzejs
        • Kinostacija Ķeipenē
        • Kultūras mantojumu centrs "Tīnūžu muiža"
        • Latvenergo koncerna Enerģētikas muzejs
        • Ķeguma pilsētas muzejs
        • Madlienas novadpētniecības muzejs "Bet tā bija!"
        • Muzejs ''Tehnika no pagātnes''
        • Ogres Vēstures un mākslas muzejs
        • Publiskā observatorija Suntažos
        • Senlietu istaba - Jumpravas pagasta vēstures ekspozīcija
        • Sudrabu Edžus dzimtās mājas
        • Suntažu muižas pils un muzejs
        • Taurupes muiža un novadpētniecības muzejs
      • Ogres teātris
    • Sabiedriskās organizācijas Informācija par biedrībām un nodibinājumiem Ogres novadā.
      • Nevalstiskās organizācijas
        • Biedrība "Aktīvās atpūtas centrs jauniešiem"
        • Biedrība "Dzelmju attīstībai"
        • Biedrība "Dzīvais māls"
        • Biedrība "Ģimenes darbnīca"
        • Biedrība "Ikšķiles Senioru skola"
        • Biedrība "Izaugsmei un Attīstībai"
        • Biedrība "Jumpravas māmiņu klubs"
        • Biedrība “Ogres novada attīstībai”
        • Biedrība "Ogres novada Tūrisma uzņēmēju biedrība"
        • Biedrība „Otrās mājas”
        • Biedrība "Plaužezeram"
        • Biedrība "Semper Novus"
        • Biedrība „Sieviešu klubs Ķeguma saulespuķes”
        • Biedrība TEPAT un KOPĀ
        • Biedrība "Vecāki kopā"
        • Biedrība "Visa Veida Kustība"
        • Biedrība "1991.gada barikāžu dalībnieki Ogres novadā"
        • Birzgales pensionāru biedrība "VIRŠU LAIKS"
        • Fonds Zilais Krusts
        • Foto klubs "Ogre"
        • Ikšķiles pensionāru biedrība "Saulgrieži"
        • Ķeguma pensionāru biedrība
        • Ķeipenes pensionāru biedrība „Avotkreses”
        • Latvijas izglītības darbinieku arodbiedrības Ogres starpnovadu arodorganizācija
        • Latvijas neredzīgo biedrības Ogres teritoriālā nodaļa
        • Latvijas Sarkanais krusts, Ogres komiteja
        • Lazdukalni 2000
        • Lielvārdes Attīstības fonds
        • Lielvārdes invalīdu biedrība
        • Lielvārdes Latviešu biedrība
        • Lielvārdes Pensionāru biedrība
        • Lielvārdes sieviešu biedrība "Iespēja"
        • Lielvārdes uzņēmēju biedrība
        • Madlienas pensionāru biedrība "Sisegale"
        • Ogres invalīdu biedrība
        • Ogres jauniešu klubs, Projektu darbnīca
        • Ogres patērētāju tiesību aizsardzības organizācija
        • Ogres pensionāru biedrība
        • Ogres politiski represēto klubs
        • Ogres uzņēmēju biedrība
        • Publisko un privāto partnerattiecību biedrība "Zied Zeme"
        • Rotari klubs
        • Sieviešu biedrība "JADARA"
        • Starptautiskais soroptimistu klubs "OGRE-ĶEGUMS"
        • Tomes sieviešu klubs “Ābele”"
      • Reliģiskās organizācijas
        • Aderkašu Svētās Marijas-Magdalēnas pareizticīgo draudze
        • Baskāju Karmela māsu ordeņa klosteris
        • Ikšķiles evaņģēliski luteriskā draudze
        • Ikšķiles Sv. Gara pareizticīgo baznīcas draudze
        • Ikšķiles Sv.Meinarda Romas katoļu draudze
        • Jumpravas evanģēliski luteriskās baznīcas draudze
        • Jumpravas katoļu baznīcas draudze
        • Krapes evaņģēliski luteriskā draudze
        • Krapes Sv. Arsēnija pareizticīgo baznīca
        • Ķeguma evaņģēliski luteriskās draudze
        • Lēdmanes Svēto apustuļu Pētera un Pāvila katoļu baznīcas draudze
        • Lielvārdes evanģēliski luteriskā draudze
        • Lielvārdes evanģēliskas ticības draudze "Gars un Patiesība"
        • Lielvārdes Romas katoļu draudze
        • Lielvārdes Sv. Nikolaja pareizticīgo baznīcas draudze
        • Madlienas evaņģēliski luteriskā draudze
        • Meņģeles evaņģēliski luteriskā draudze
        • Ogres evanģēliski luteriskā baznīca
        • Ogres Septītās dienas Adventistu draudze
        • Ogres Sv. Meinarda Romas katoļu baznīca
        • Ogres Sv. Nikolaja pareizticīgo draudze
        • Ogres Trīsvienības baptistu draudze
        • Suntažu evaņģēliski luteriskā draudze
        • Suntažu Vissvētās Trīsvienības Romas katoļu draudze
        • Tomes evaņģēliski luteriskā draudze
    • Sabiedriskais transports Pašvaldības sabiedriskais transports, skolēnu autobuss u.c.
    • Sociālā joma Sociālā atbalsta mehānismi novadā/pilsētā.
      • Socialā palīdzība
      • Ogres novada socialais dienests
        • Kontakti
        • Ogres novada Sociālā dienesta vēsture
        • Normatīvie akti
        • Atbalsts daudzbērnu ģimenēm
        • Veidlapas
        • Atskaites
    • Sports Sporta pasākumi un iespējas novadā/pilsētā.
      • Sporta skolas un centri
      • Sporta nodarbības
        • Peldēšana
        • Basketbols
        • Vieglatlētika
        • Svarcelšana
        • Mākslas vingrošana
        • Futbols
        • Karatē
        • Daiļslidošana
        • Orientēšanās sports
        • Frisbijs
        • Florbols
        • Handbols
        • Handbols
        • Hokejs
      • Baseins
    • Tūrisms Informācija par apskates vietām, naktsmītnēm un kafejnīcām, restorāniem.
      • Tūrisma informācijas centrs
    • Uzņēmējdarbība Uzņēmējdarbības vides raksturojums novadā, kā arī dažādi atbalsta mehānismi.
      • Ogres novada uzņēmēju biedrība
      • Uzņēmējdarbības statistika
      • LIAA pārstāvniecība Ogrē
    • Veselība Veselības veicināšanas pasākumi, ārstu prakses un cita medicīniska rakstura informācija.
      • Poliklīnikas, slimnīcas
        • Ogres rajona slimnīcas ambulatorā nodaļa
        • Ogres veselības centrs
        • Ģimenes ārstu prakses Ogres novadā
        • Ogres rajona slimnīca
      • Oveselība
    • Vide Informācija par dzīvnieku turēšanu, dabas vērtībām un vides pētījumiem pilsētā.
      • Atkritumu apsaimniekošana
      • Ceļu uzturēšana
      • Latvāņu ierobežošanas pasākumu plāns
      • Mežu apsaimniekošana
      • Reģistrētie asenizatori Ogres novadā
      • Zemes dzīļu izmantošana novadā
      • Ielu un ceļu uzturēšanas klases
      • Ielu apgaismojums
      • HES kamera
  • Pakalpojumi Informācija par pakalpojumiem, ko iestāde klātienē vai elektroniskā veidā sniedz iedzīvotājiem un uzņēmumiem.
    • Pakalpojumu saraksts
    • Tiešsaistes pieraksts
    • Ogres novadnieka karte
      • Norēķini ar Mobilly
      • Uzņēmēju piedāvājumi
        • 10% atlaide iepriekš veiktiem pasūtījumiem “M.Pūres beķerejā”
        • 10% atlaide konsultācijai Ātrās pieejamības medicīnas klīnikā 1 Min. Klīnika Ogrē
        • 10% atlaide saulesbrillēm, briļļu ietvariem un 10% atlaide kontaktlēcām iegādei optikas salonā Metropole
        • 10% atlaide šķēršļu parka “Milžu taka” apmeklējumam
        • 5% atlaide SIA "Kreispuses" bērnu un zīdaiņu apğērbiem, apaviem
        • 5% atlaide precēm veikalos “Latvijas Pērles - Ogre”, “Rabarbers” un “Latvijas Pērle” birojā
        • Atlaides Ogres novada kultūras pasākumiem
        • Atlaides individuālam apmeklējumam un abonementam klinšu kāpšanas tornī Ogre
        • Ogres Vēstures un mākslas muzejā - ieeja bez maksas
        • 10% atlaide ekskursijām Vecrīgā gida pavadībā
        • 10% atlaide “Manas Garšas” pirkumiem un pasākumiem
        • 10% atlaide precēm dāvanu veikalā “ALshop”
        • 10% atlaide telpu īrei svinību un atpūtas vietā “Oranžērija Bekuciems”
        • 10% atlaide izklaides parkā “Avārijas brigāde” sezonas abonementa iegādei
        • 10% atlaide veikalā “Zoocentrs”
        • 10% atlaide visām auto precēm veikalā “Ella auto”
        • 10% atlaide ziemas virsdrēbju šūšanai salonā “Valērija”
        • 10% atlaide “Dzīvības poga” abonēšanas maksai pirmajiem trīs mēnešiem
        • 10% atlaidi gatavajiem izstrādājumiem SIA “Volantes” aizkaru veikalā-darbnīcā
        • 10% atlaidi pirkumiem kafejnīcā "Ogres Ezītis miglā"
        • 15% atlaide, iegādājoties biļetes uz Ogres teātra izrādēm
        • Atlaides “Štoka picā” Ogrē
        • Bezmaksas ekskursija pa “IndieJānis” alus darītavu
        • Peldbaseina “Neptūns” piedāvājumi
        • Ķeipenes piparkūku studija piedāvā 10% atlaidi no ekskursijas cenas
    • E-iesniegums
  • Aktualitātes Ziņas par iestādes aktualitātēm.
    • Notikumu kalendārs Iestādes plānotie aktuālie notikumi un pasākumi.
    • Jaunumi Aktuāla informācija, paziņojumi medijiem un nozares aktualitātes.
    • Foto un video
    • Informatīvie izdevumi Pašvaldības ikmēneša izdevums - novada ziņas, pašvaldības avīze.
      • Informatīvais izdevums "Ikšķiles Vēstis"
      • Informatīvais izdevums "Lielvārdes Novada Ziņas"
      • Informatīvais izdevums "Ķeguma Novada Ziņas"
      • Ogres novada pašvaldības informatīvais izdevums "Savietis"
      • Informatīvais izdevums "Ogrēnietis"
    • Sabiedrības līdzdalība Iespēja iedzīvotājiem un nevalstiskajām organizācijām iesaistīties politikas veidošanas procesā un regulējumu izstrādē.
      • Informācija par kolektīvo iesniegumu virzību
      • Publiskās un sabiedriskās apspriešanas
      • Saistošo noteikumu projekti
      • Trauksmes celšana  Saskaņā ar Trauksmes celšanas likumu ikvienam ir tiesības celt trauksmi publiskajā un privātajā sektorā par darba vidē novērotu sabiedrības interešu apdraudējumu.
    • Iedzīvotāju padomes
  • Kontakti
    • Pašvaldības kontakti un rekvizīti
      +371 65071160 ogredome [at] ogresnovads.lv Brīvības iela 33, Ogre, Ogres novads, LV-5001
      E-adrese
      E-adrese jeb oficiālā elektroniskā adrese ir personalizēta pastkastīte portālā Latvija.gov.lv, drošai saziņai ar iestādi.
      Lasīt vairāk
    • Pašvaldības administrācija Lasīt vairāk
    • Iestādes un aģentūras Lasīt vairāk
    • Darbinieki Lasīt vairāk
    • Pilsētu un pagastu pārvaldes un to padotībā esošas iestādes Lasīt vairāk
    • VPVKAC kontakti Lasīt vairāk
Aizvērt

Piekļūstams saturs

Viegli lasīt

Fonta izmērs

Kontrasts

Vizuālie rīki

Citi uzstādījumi
Aizvērt iestatījumus
Īpašumtiesību izsole nekustamajam īpašumam Skolas ielā 4, Ikšķilē, laboratorijas ierīkošanai. Skats no ielas.
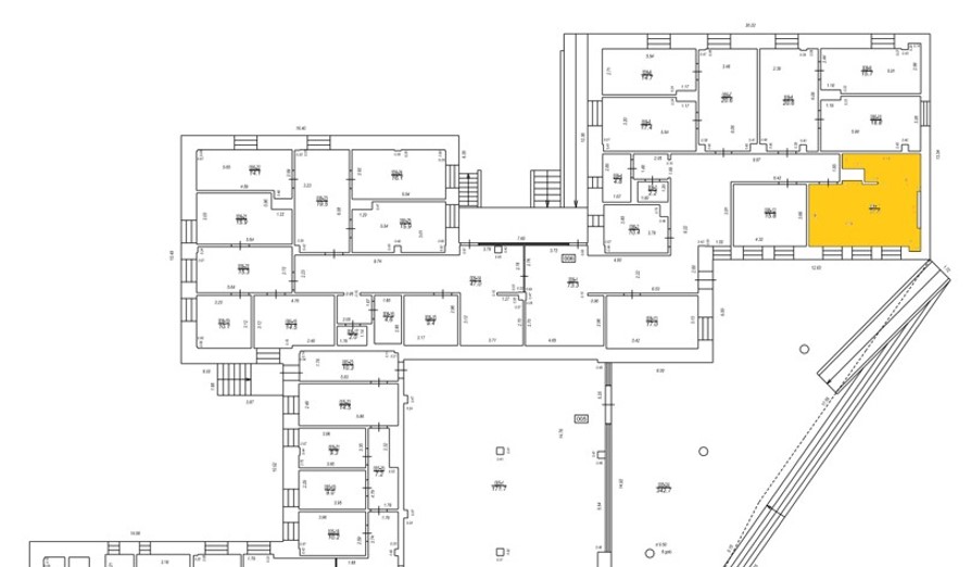
Īpašumtiesību izsole nekustamajam īpašumam Skolas ielā 4, Ikšķilē, laboratorijas ierīkošanai. Telpu plāns.
Īpašumtiesību izsole nekustamajam īpašumam Skolas ielā 4, Ikšķilē, laboratorijas ierīkošanai. Iekštelpas.
Īpašumtiesību izsole nekustamajam īpašumam Skolas ielā 4, Ikšķilē, laboratorijas ierīkošanai. Iekštelpas.
Īpašumtiesību izsole nekustamajam īpašumam Skolas ielā 4, Ikšķilē, laboratorijas ierīkošanai. Iekštelpas.
Īpašumtiesību izsole nekustamajam īpašumam Skolas ielā 4, Ikšķilē, laboratorijas ierīkošanai. Iekštelpas.
Īpašumtiesību izsole nekustamajam īpašumam Skolas ielā 4, Ikšķilē, laboratorijas ierīkošanai. Iekštelpas.
Īpašumtiesību izsole nekustamajam īpašumam Skolas ielā 4, Ikšķilē, laboratorijas ierīkošanai. Iekštelpas.

Paziņojums par nedzīvojamās telpas nekustamajā īpašumā Skolas ielā 4, Ikšķilē, Ogres novadā, iznomāšanu laboratorijas pakalpojumu sniegšanai

Informācija par izsoli pieejama šeit

Publicēts: 16.12.2024.

Dalīties ar šīs lapas saturu!

Izvēlies sociālo tīklu, kurā Tu vēlies dalīties ar šīs lapas saturu.
FacebookX / TwitterLinkedinThreads